
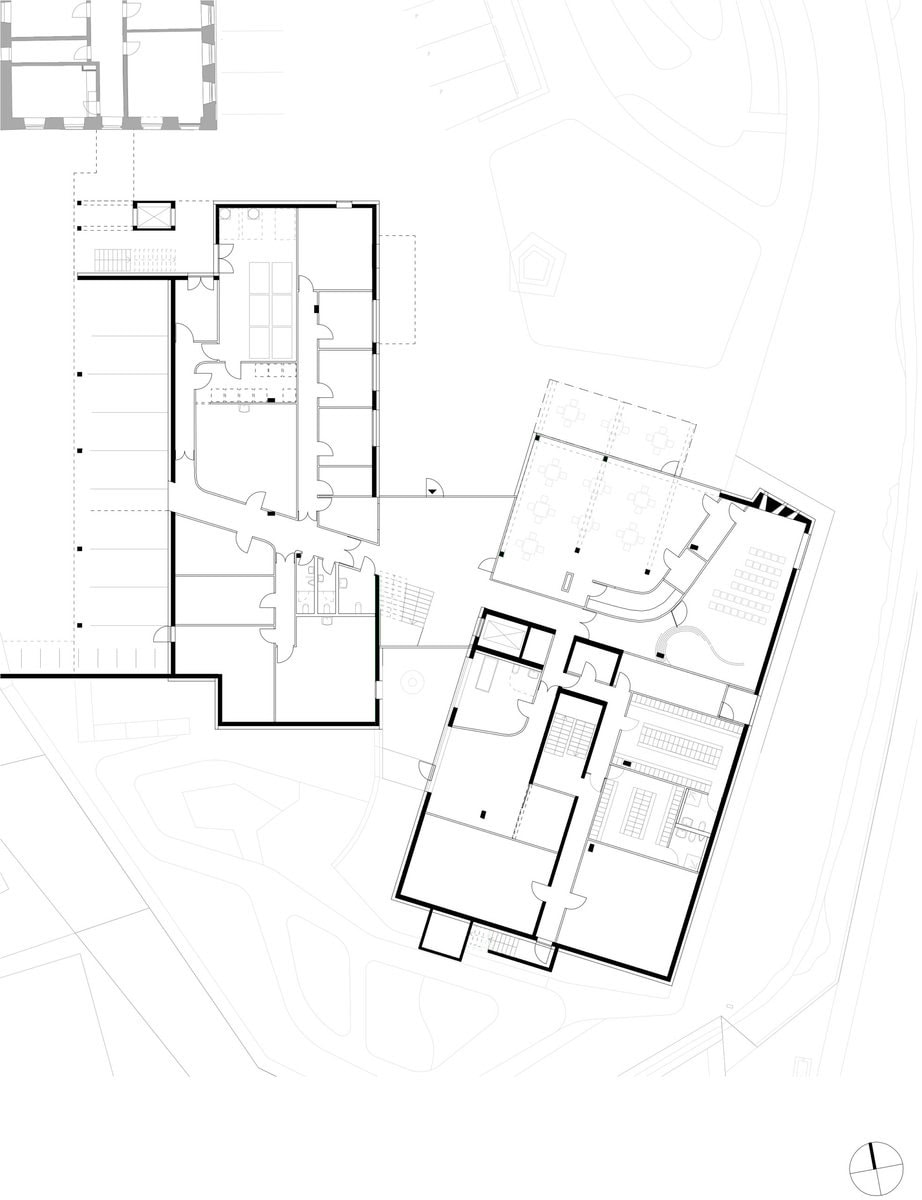
Der Neubau des Stahlbads wurde mit besonderer Rücksicht auf die bestehende Bebauung, das historische Hauptgebäude und den freien Blick darauf geplant. Das Gebäude fügt sich harmonisch in die Umgebung ein und setzt die architektonische Linie des alten Stahlbads sowie der gegenüberliegenden Bebauung an der Sonnenbergstraße fort.
Die geschaffene Freifläche vor dem V-förmige Gebäude dient als großzügiger, halböffentlicher Grünbereich, der Bewohnern, Besuchern und Anwohnern als Erholungsraum zur Verfügung steht. Gleichzeitig fungiert dieser als einladende Verbindung zum Ortskern von Littenweiler. Ergänzend gibt es einen privaten Garten auf der Rückseite des Gebäudes, der ebenerdig vom ersten Wohngeschoss zugänglich ist.
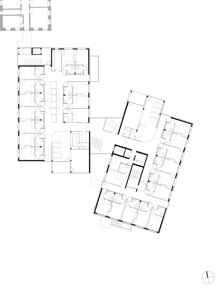
Der Neubau besteht aus zwei Wohngebäuden mit jeweils 12 Einzelzimmern pro Geschoss. Diese sind durch einen transparenten Erschließungsbau verbunden, der sowohl Orientierung als auch funktionale Verknüpfung der Wohngruppen ermöglicht. Gemeinschaftsräume befinden sich in vorgelagerten Erkern, die zwischen der Maßstäblichkeit der Umgebung und der großen Baumasse des Neubaus vermitteln.
Das architektonische Ziel war es, die Atmosphäre eines klassischen Wohnhauses anstelle eines institutionellen Heims zu schaffen. Dies wird durch natürliche Materialien wie Holz unterstützt: Fensterrahmen aus Weißtanne, Möbel aus Esche und Terrassendielen aus Lärche erzeugen eine warme und wohnliche Atmosphäre.
Ein besonderer Fokus liegt auf sozialen Begegnungsräumen sowie einer offenen und lichtdurchfluteten Gestaltung. Große Fensterflächen bieten den Bewohnern einen direkten Blick auf die umliegenden Schwarzwaldhügel und das Dreisamtal, was eine enge Verbindung zur Natur ermöglicht.
Mit dem Neubau des Stahlbads entsteht ein modernes, aber zugleich behutsam in die Umgebung integriertes Wohnkonzept. Die Kombination aus funktionaler Architektur, sozialen Begegnungsräumen und naturnaher Gestaltung schafft eine einladende und lebenswerte Atmosphäre für Bewohner und Besucher gleichermaßen.
Standort:
Freiburg im Breisgau, Baden-Württemberg
Brutto-Rauminhalt (BRI):
18.635 m³
Brutto-Grundfläche (BGF):
5703 m²
Netto-Grundfläche (NGF):
5105 m²














©2020 Stocker Dewes Architekten BDA PartGmbBImpressumDatenschutz
©2019 Stocker Dewes Architekten BDA