
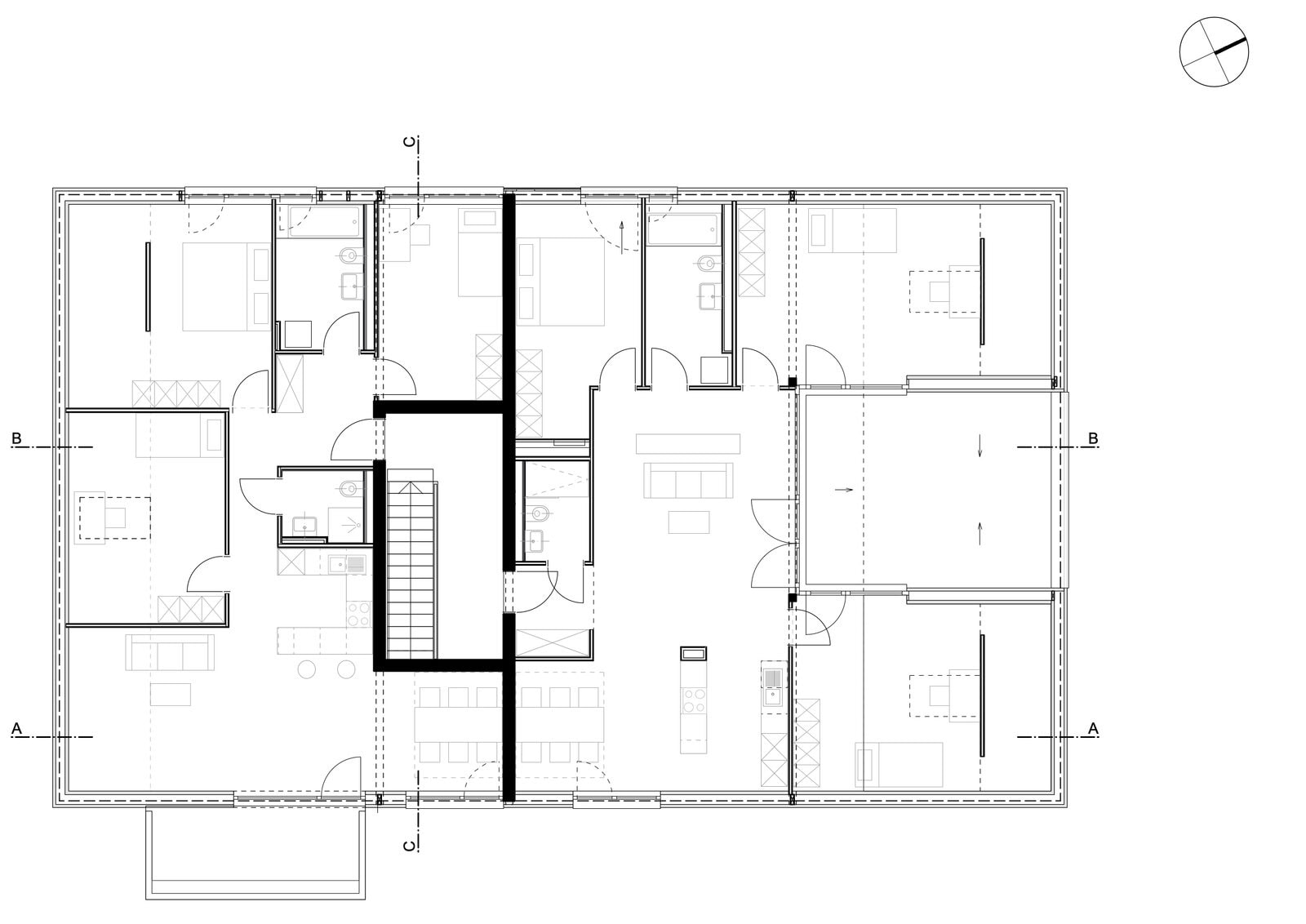
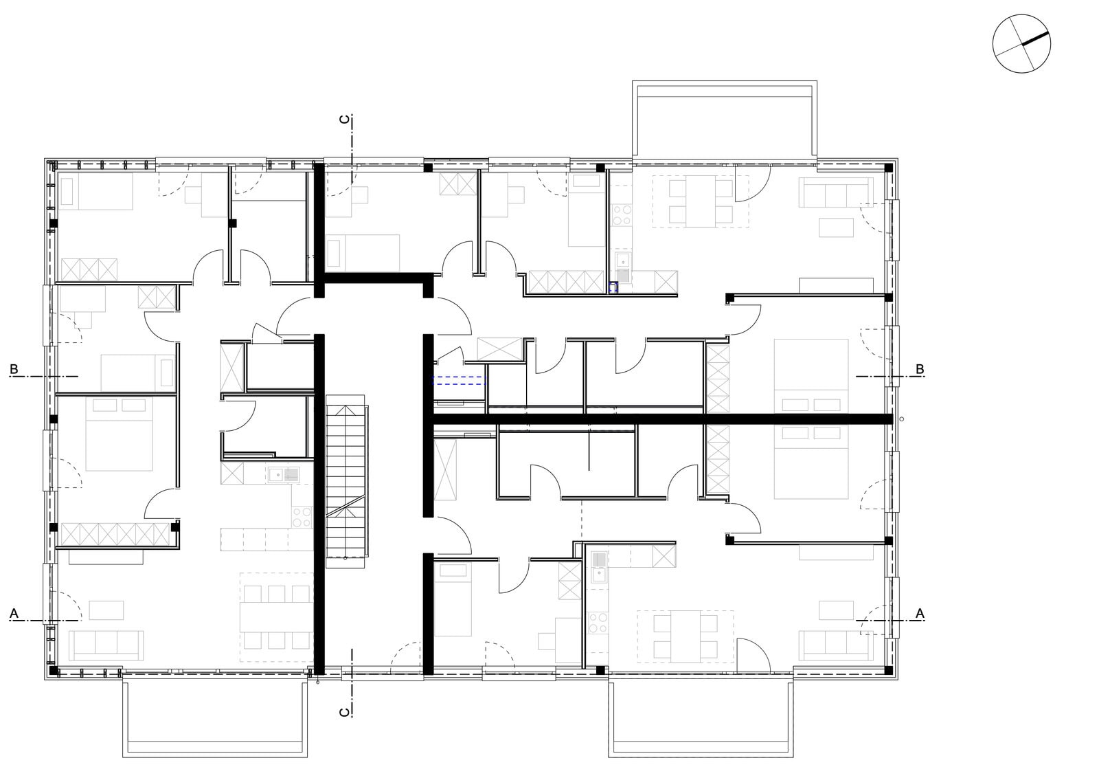
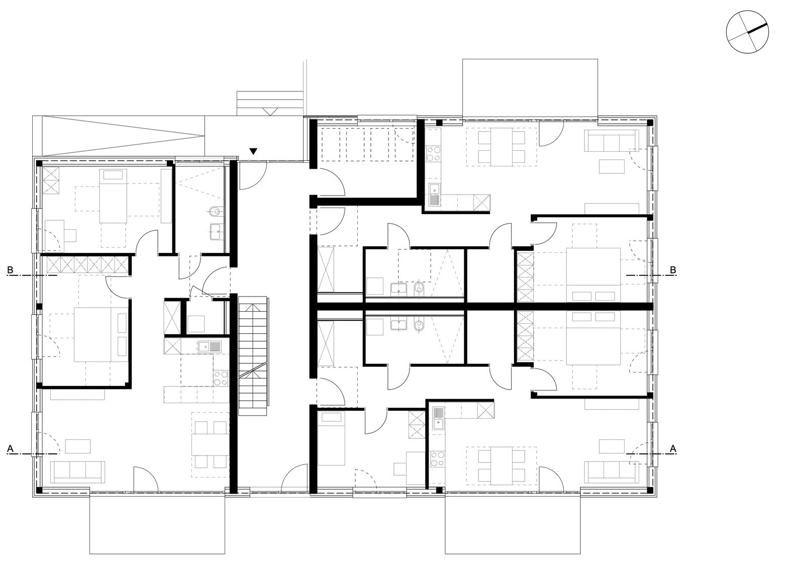
Der Neubau befindet sich im kleinsten Stadtteil von Weil am Rhein, im Märkt, direkt am Rand des Waldes. In einer Umgebung, die überwiegend von Einfamilienhäusern mit typischen Satteldächern geprägt ist, nimmt das Gebäude Bezug auf die dörfliche Bautypologie. Auf dem ehemaligen Grundstück mit sieben Garagen entstand ein Mehrfamilienhaus mit acht Wohnungen.
Die Geometrie und die Wahl des Baukörpers orientieren sich an der besonderen Präsenz des angrenzenden Waldes. So entstand ein längs ausgerichtetes Volumen, das sich mit seiner Giebelseite zum Wald hin öffnet. Durch ortstypische Elemente wie Ziegel, Putz und ein Satteldach wird der Bezug zum örtlichen Kontext gestärkt.
Das Gebäude umfasst drei Geschosse und eine tragende Struktur aus Stahlbeton. Die Außenwände sind in Holzständerbauweise ausgeführt, die Dachkonstruktion als Sparrendach. Der innenliegende, durchlaufende Erschließungskern mit seinem großzügig geöffneten Eingangsbereich ermöglicht bereits beim Betreten des Hauses einen Blick in den Garten.
Der Eingangsbereich ist mit einer vertikalen Brettschalung gestaltet, wodurch der Bezug zum angrenzenden Wald zusätzlich hervorgehoben wird. Die Wohnungen im Erdgeschoss sind barrierefrei. Alle Wohneinheiten verfügen über großzügige Terrassen im Erdgeschoss sowie Balkone in den Obergeschossen.
Die Materialwahl im Inneren – Eichen-Industrieparkett und weiße Wandoberflächen – sorgt für Ruhe und lenkt den Blick bewusst auf die umgebende Natur.
Standort:
Weil am Rhein, Baden-Württemberg
Brutto-Rauminhalt (BRI):
3740 m³
Brutto-Grundfläche (BGF):
1200 m²
Netto-Grundfläche (NGF):
1050 m²












©2020 Stocker Dewes Architekten BDA PartGmbBImpressumDatenschutz
©2019 Stocker Dewes Architekten BDA